Ляйпциг

Ляйпциг

3

1

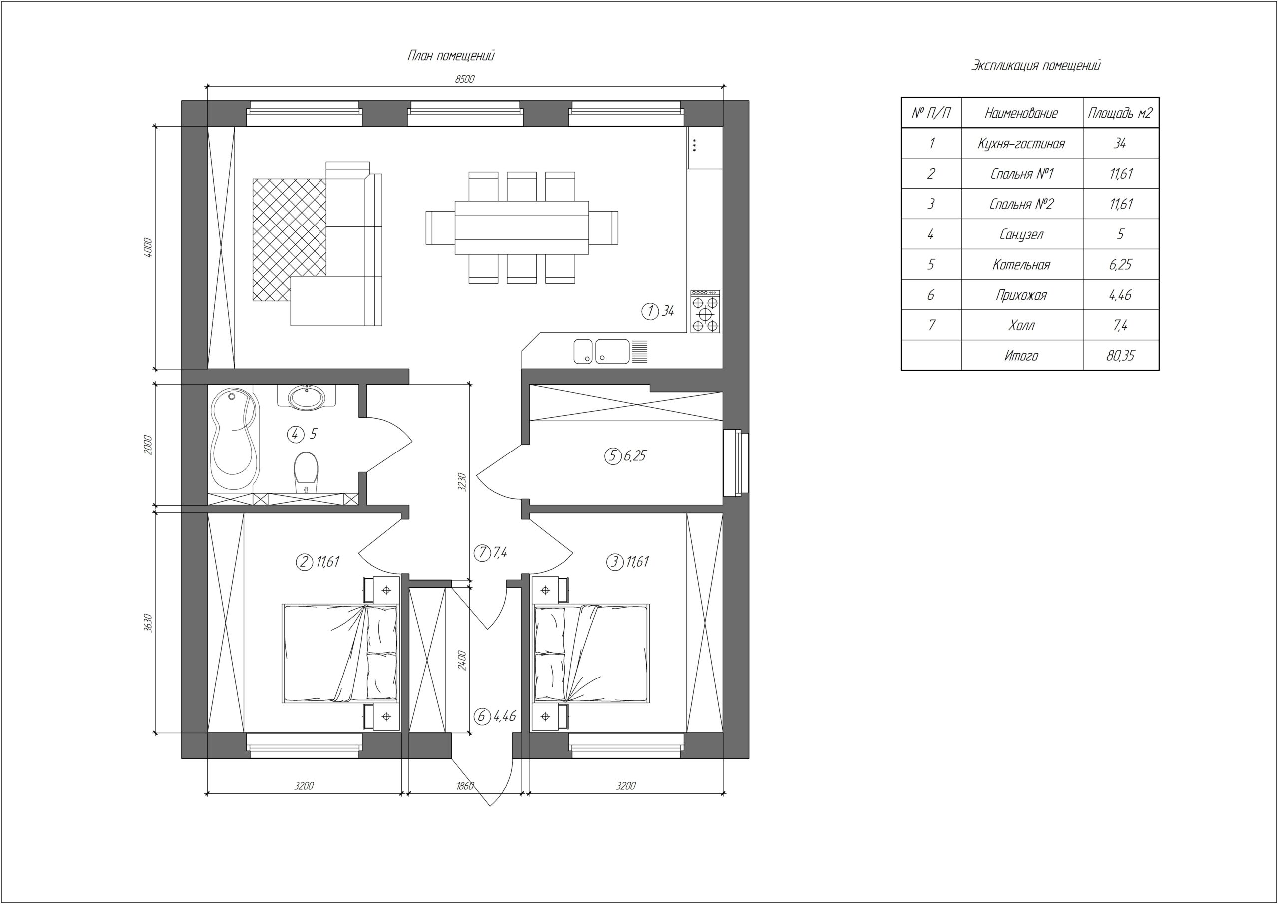
Площадь ..............................................................................................................80,35 м²
Материал .............................................................................................................Камень
Этажей.................................................................................................................................1
Кухня-гостиная................................................................................................................1
Котельная............................................................................................................................1
Холл.......................................................................................................................................1
Прихожая.............................................................................................................................1

Стоимость:

от 64 000 /м2

Нажимая кнопку «Написать нам»
Вы соглашаетесь на обработку персональных данных

Рекомендуемые проекты

Прага 1

3

1

Площадь .......................................79,98 м²
Материал .....................................Камень
Этажей ...........................................................1

Опции: Кухня-гостиная, Котельная, Холл, Прихожая

Стоимость:

от 64 000 /м2

Тироль

4

2

Площадь .......................................142,81 м²
Материал .....................................Камень
Этажей ...........................................................1

Опции: Кухня-гостиная, Котельная, Холл, Терраса

Стоимость:

от 64 000 /м2

Майами

3

2

Площадь .......................................112,53 м²
Материал .....................................Камень
Этажей ...........................................................1

Опции: Кухня-гостиная, Холл, Прихожая, Ванная, Котельная

Стоимость:

от 64 000 /м2

Мюнхен

4

2

Площадь ......................................128,14 м²
Материал .....................................Камень
Этажей ...........................................................2

Опции: Кухня-гостиная, , Терраса, Холл, Ванная, Прихожая

Стоимость:

от 64 000 /м2

Мы используем cookies

Это позволяет нам анализировать взаимодействие посетителей с сайтом и делать его лучше

Ремонт под ключ

Пройдите опрос и получите расчет стоимости ремонта

Для заполнения данной формы включите JavaScript в браузере.
11 вопрос
22 вопрос
33 вопрос
44 вопрос
55 вопрос
66 вопрос
7Итог

Какой объект нужно отремонтировать?

Выберите нужный вариант и нажмите «Далее»
Какой объект нужно отремонтировать

Строительство

Строительство

Пройдите опрос и получите расчет стоимости дома

Для заполнения данной формы включите JavaScript в браузере.
11 вопрос
22 вопрос
33 вопрос
44 вопрос
55 вопрос
6Итог

Какой тип Вас интересует?

Выберите нужный вариант и нажмите «Далее»
Какой тип Вас интересует

Отправьте заявку

Что будет дальше?

  • Свяжемся с Вами в удобном для Вас мессенджере

  • Зададим уточняющие вопросы

  • Вместе с Вами сформулируем задачу

  • Запланируем консультацию в удобное для Вас время

Мы составим для Вас эксклюзивное коммерческое предложение

Нажимая кнопку «Отправить» Вы соглашаетесь на обработку персональных данных